CONCEPTION & RENOVATION D'UNE CUISINE SUR LORIENT

Cuisine sur mesure à Lorient, FG Studio
19-10-2025

Conception & Rénovation d'une cuisine sur LORIENT

📍Projet RLR - Lorient

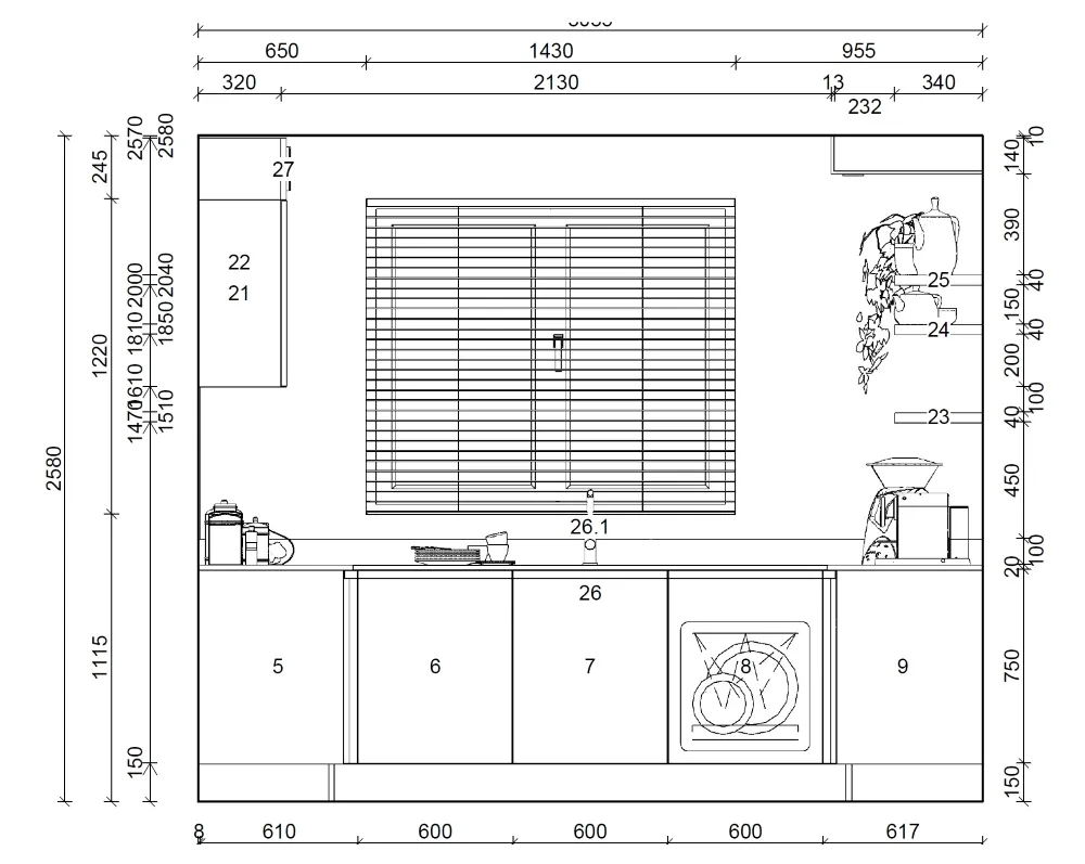
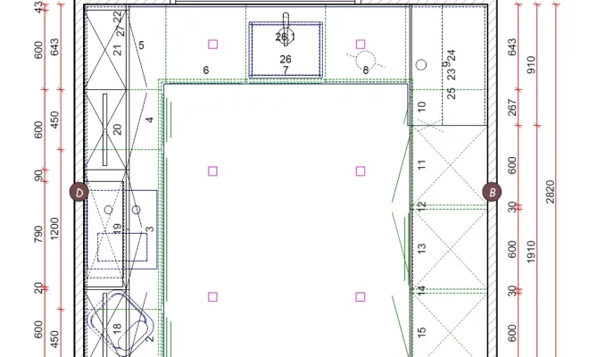
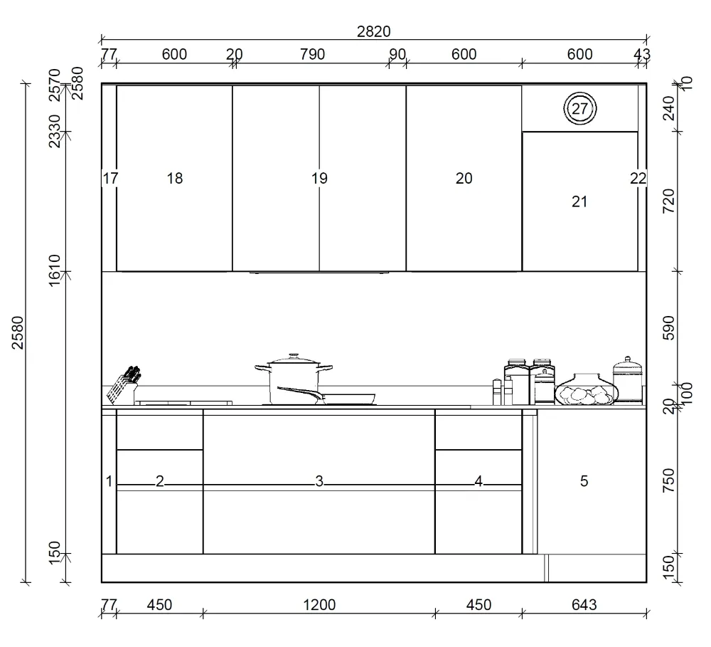
Cuisine Italienne Façade Blanc Mat & Plan Granit Noir Z

Pour ce projet, nous avons transformé une cuisine vintage en un style moderne, sobre & épuré. 🌟

🔹 Pour l'aménagement : nous avons choisi le modèle Tropéa de la marque ImabConcept pour un agencement sur-mesure qui maximise la personnalisation et les rangements.

🔹 Pour le plan de travail : le coup de cœur de nos clients s’est porté sur un Granit Noir Zimbabwe finition cuir. Un choix qui allie qualité exceptionnelle et élégance naturelle. Sa couleur noire intense apportant une touche de sophistication à la cuisine, tout en restant sobre et discrète

Un immense merci à nos partenaires les Sté. @kloartrenovation 🪚et @granit-evolution🗿, et surtout un grand merci à nos clients pour leurs confiances. 🙏

Vous souhaitant une agréable visite, si vous avez besoin d'un complément d'information concernant votre Cuisiniste à [LORIENT] prenez contact dès à présent.